SGURGOLA (FR)  – REALIZZAZIONE VARIANTE DN150 DEL NUOVO TRACCIATO DI SGURGOLA LOTTO 1 – 535 M

Progettazione Definitiva e Progettazione Esecutiva

L’intervento di progetto prevede la realizzazione di una nuova condotta idrica DN150 in variante, a partire dalla rotatoria di intersezione tra la SP 12 e la SP145 nel comune di Sgurgola sino alla intersezione con la SP 11 nel comune di Anagni.

In dettaglio è prevista la realizzazione delle seguenti opere:

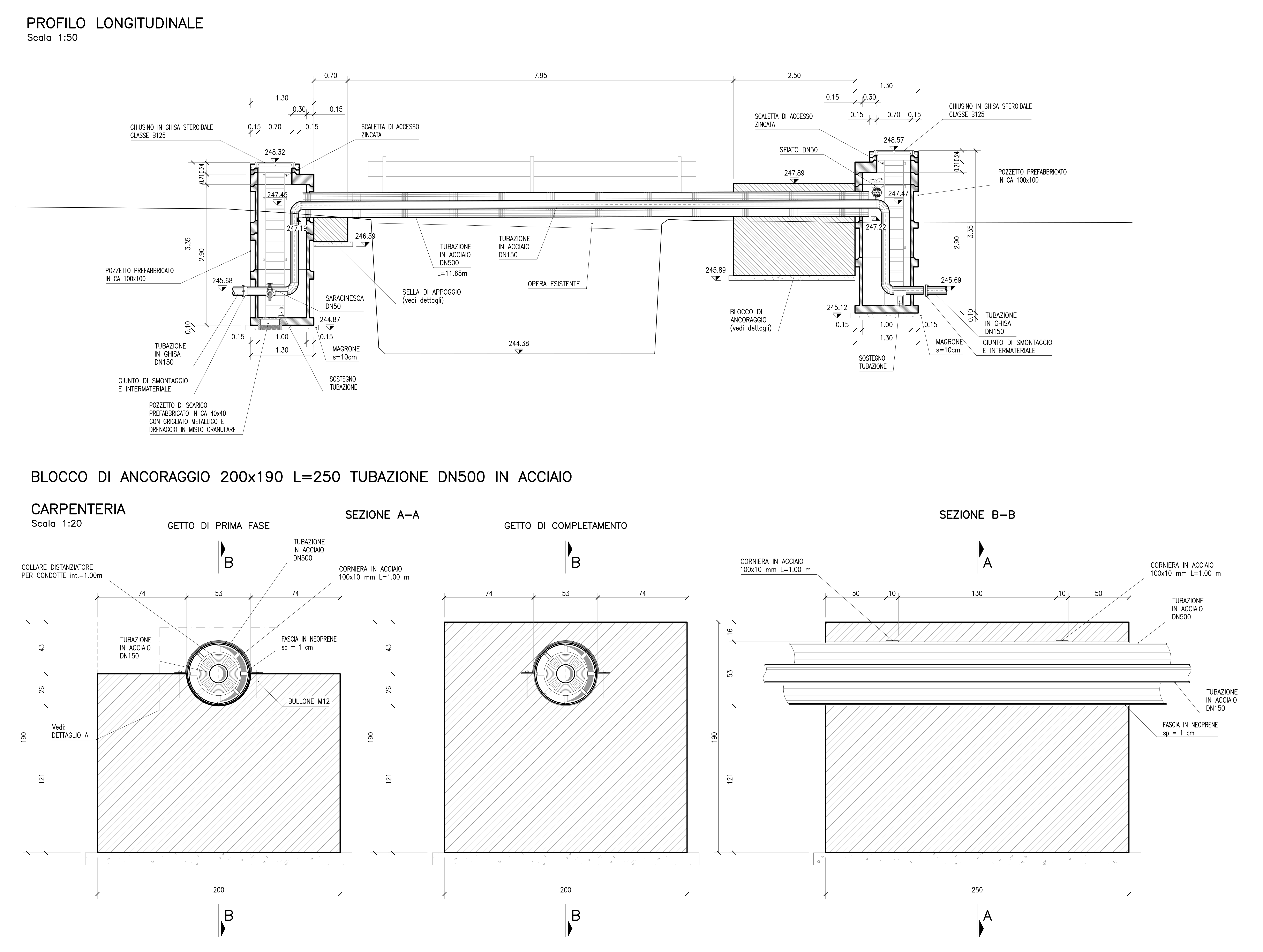
  • una condotta alimentatrice DN150 – L=514 m parte in ghisa sferoidale e parte in pead, con tracciato compreso tra il pozzetto con partitore della SP 145 sino al collegamento in un manufatto di progetto sulla SP 12.

 

L’intervento di progetto rappresenta l’estensione del progetto che prevede la realizzazione di una nuova condotta idrica DN150 in variante, a partire dalla rotatoria di intersezione tra la SP 12 e la SP145 nel comune di Sgurgola sino alla intersezione con la SP11 nel comune di Anagni.

In dettaglio, nella seguente estensione, è prevista la realizzazione delle seguenti opere:

  • una condotta alimentatrice DN150 in ghisa sferoidale, suddivisa in due tratti:
  • Tratto 2, della lunghezza di 1374 m con tracciato compreso tra il manufatto di progetto sulla SP 12 (fine tratto 1) e il pozzetto esistente su area esterna di accesso allo stabilimento Dobfar SPA su via Neutra Disco Pub;
  • Tratto 3, della lunghezza di 3778 m con tracciato compreso tra la zona esterna a nord della Dobfar sino al pozzetto esistente su via Prato dell’Olmo.

 

Committente: ACEA ATO2 S.p.A.

Importo delle opere: € 2.515.200,00

Anno: 2021 – 2022